logo
Wersja dla niedowidzących
  Miasto CHOJNÓW
Choose language:       
corner
Statystyki
Rejestr zmian
Mapa strony
Instrukcja biuletynu
Pliki do pobrania
corner
  
corner corner
corner corner
 URZĄD MIEJSKI
plus Dane podstawowe
plus Struktura organizacyjna
plus Zakres Kompetencji
plus Urząd Stanu Cywilnego
plus Kontrole
minus OSTRZEŻENIA, KOMUNIKATY
minus Przetwarzanie danych osobowych
 ORGANA WŁADZY
plus Burmistrz Miasta
plus Rada Miejska Chojnowa
 PRAWO LOKALNE
minus Statut
plus Budżet
plus Finanse gminy
plus Uchwały Rady Miejskiej
plus Informacje Urzędu
plus Zagospodarowanie przestrzenne
plus Podatki i opłaty lokalne
plus Zwrot podatku akcyzowego
 INNE
plus Nabór pracowników
plus Wybory, referenda
plus Jednostki organizacyjne
plus Rejestry i ewidencje
minus Redakcja Biuletynu
plus Instrukcja obsługi biuletynu
 Urzędy Centralne
minus Spis adresów
 Akty prawne w wersji elektronicznej
minus Akty prawne w wersji elektronicznej
 Sprawy do załatwienia
 Wzory dokumentów
 Podział administracyjny kraju
 Urzędy pracy w Polsce
 Urzędy skarbowe w Polsce
A A A


26.10.2005 r.
Zmiana miejscowego planu zagospodarowania przestrzennego staromiejskiego zespołu zabudowy śródmieścia miasta Chojnowa - dokumenty znajdują się w załącznikach poniżej.

Załączniki do pobrania: 2005-12-16 15:05:17 - Uchwała Nr XLVIII/222/05 Rady Miejskiej Chojnowa z dnia 26 października 2005r. w sprawie zmiany miejscowego planu zagospodarowania przestrzennego staromiejskiego zespołu zabudowy śródmieścia miasta Ch (296.73 kB)
2005-12-16 15:07:11 - Legenda do załączników graficznych (392.48 kB)
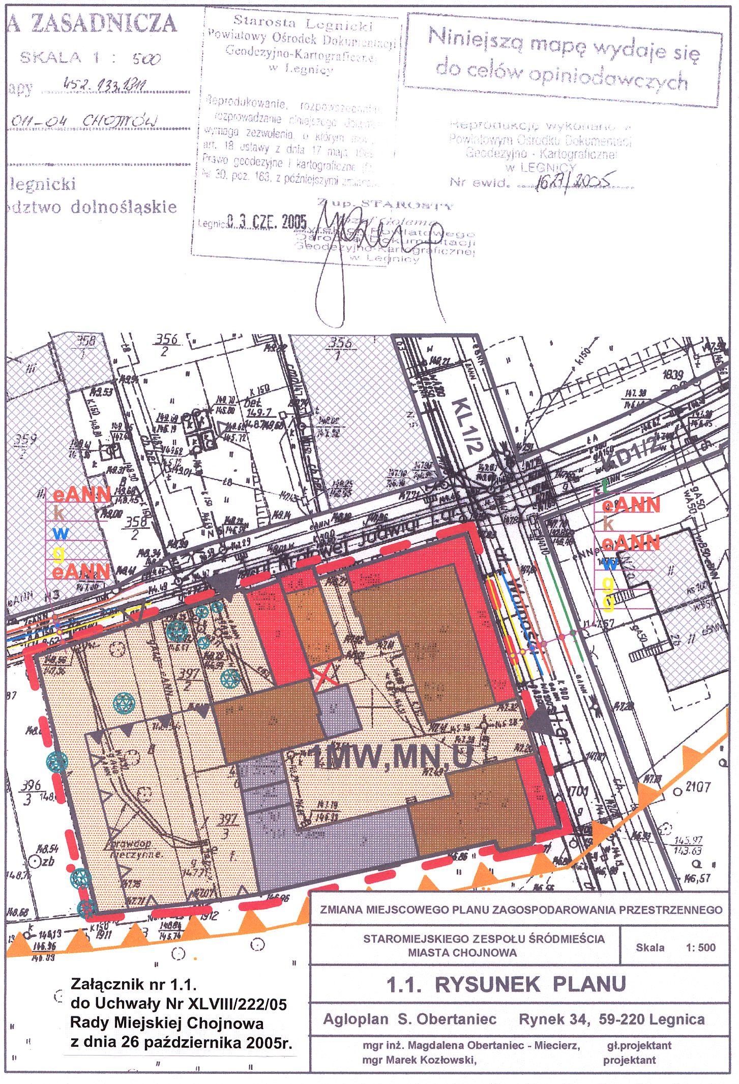
2005-12-16 15:10:18 - ZAŁĄCZNIK NR 1.1 do Uchwały Nr XLVIII/222/05 Rady Miejskiej Chojnowa z dnia 26 października 2005 roku (795.83 kB)
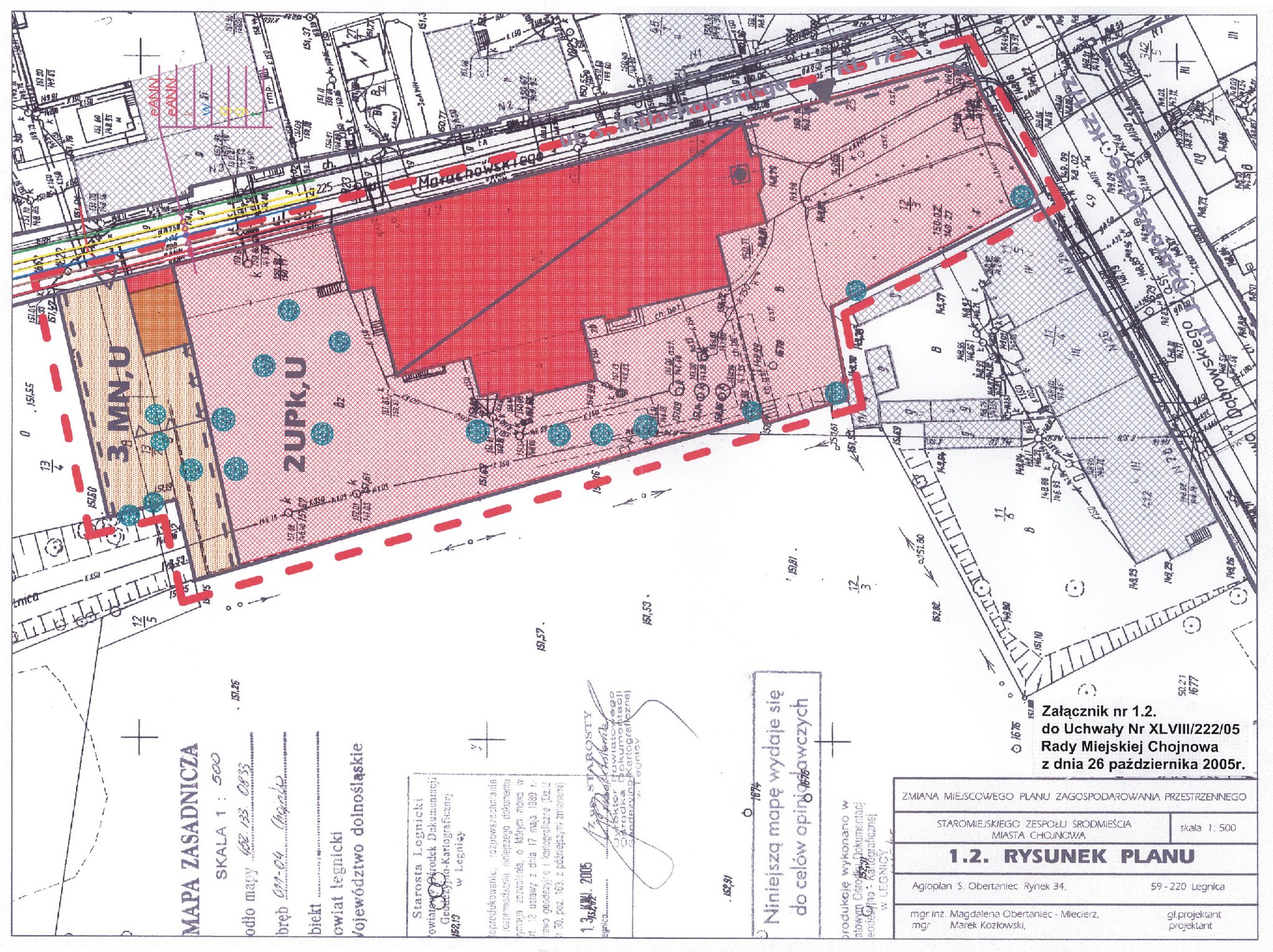
2005-12-16 15:11:35 - ZAŁĄCZNIK NR 1.2 do Uchwały Nr XLVIII/222/05 Rady Miejskiej Chojnowa z dnia 26 października 2005 roku (954.73 kB)
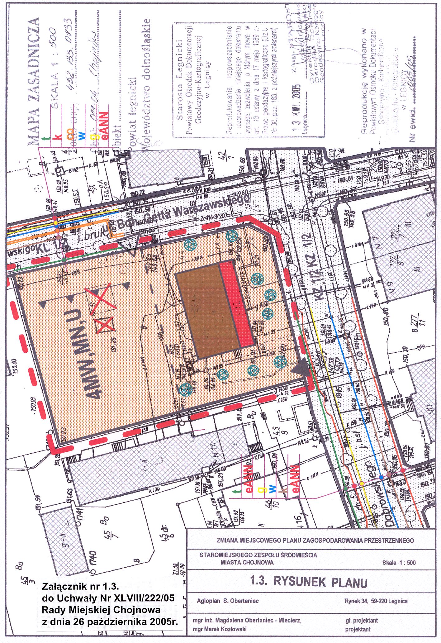
2005-12-16 15:12:52 - ZAŁĄCZNIK NR 1.3 do Uchwały Nr XLVIII/222/05 Rady Miejskiej Chojnowa z dnia 26 października 2005 roku (862.89 kB)
2005-12-16 15:16:16 - ZAŁĄCZNIK NR 1.4 do Uchwały Nr XLVIII/222/05 Rady Miejskiej Chojnowa z dnia 26 października 2005 roku (836.18 kB)
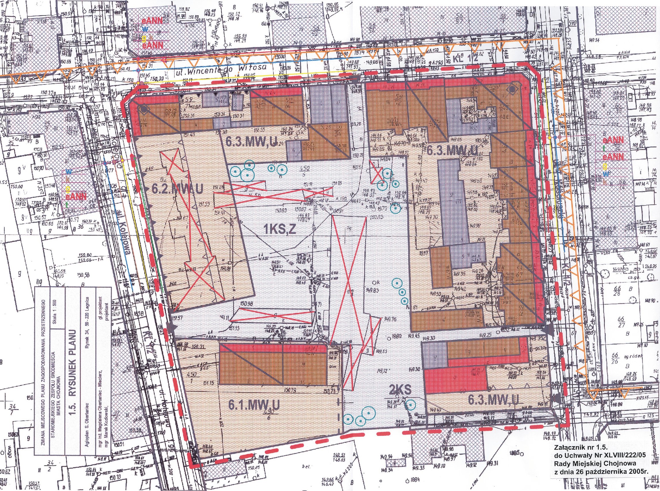
2005-12-16 15:17:55 - ZAŁĄCZNIK NR 1.5 do Uchwały Nr XLVIII/222/05 Rady Miejskiej Chojnowa z dnia 26 października 2005 roku (1.62 MB)
2005-12-16 15:21:49 - ZAŁĄCZNIK NR 1.6 do Uchwały Nr XLVIII/222/05 Rady Miejskiej Chojnowa z dnia 26 października 2005 roku (757.82 kB)
2005-12-16 15:23:21 - ZAŁĄCZNIK NR 2 do Uchwały Nr XLVIII/222/05 Rady Miejskiej Chojnowa z dnia 26 października 2005 roku (1.21 MB)
2005-12-16 15:25:32 - ZAŁĄCZNIK NR 3 do Uchwały Nr XLVIII/222/05 Rady Miejskiej Chojnowa z dnia 26 października 2005 roku (104.56 kB)
2005-12-16 15:26:01 - ZAŁĄCZNIK NR 4 do Uchwały Nr XLVIII/222/05 Rady Miejskiej Chojnowa z dnia 26 października 2005 roku (94.24 kB)
2005-12-16 15:31:35 - Prognoza oddziaływania na środowisko (552.08 kB)
2005-12-21 10:34:43 - Opracowanie ekofizjograficzne (2.70 MB)
2005-12-21 10:38:16 - Opracowanie ekofizjograficzne - uzupełnienie (346.52 kB)
2005-12-21 10:39:48 - Inwentaryzacja, analizy i studia (878.62 kB)
2005-12-21 10:41:11 - Inwentaryzacja, analizy i studia - uzupełnienie (546.67 kB)
2005-12-21 10:42:52 - Prognoza skutków finansowych (356.92 kB)

Nazwa dokumentu: Zmiana miejscowego planu zagospodarowania przestrzennego staromiejskiego zespołu zabudowy śródmieścia miasta Chojnowa
Osoba, która wytworzyła informację: Administrator
Osoba, która odpowiada za treść: Administrator
Osoba, która wprowadzała dane: Administrator
Data wytworzenia informacji: 2005-12-16 15:01:05
Data udostępnienia informacji: 2005-12-16 15:01:05
Data ostatniej aktualizacji: 2005-12-21 10:44:19

Wersja do wydruku...

corner   corner